Постановление Правительства Санкт-Петербурга от 17.02.2015 N 143 "Об утверждении проекта планировки с проектом межевания территории, ограниченной наб.Обводного кан., Лиговским пр., Курской ул., Воронежской ул., во Фрунзенском районе"
ПРАВИТЕЛЬСТВО САНКТ-ПЕТЕРБУРГА
ПОСТАНОВЛЕНИЕ
17.02.2015 | N 143 |
Об утверждении проекта планировки
с проектом межевания территории,
ограниченной наб.Обводного кан.,
Лиговским пр., Курской ул.,
Воронежской ул., во Фрунзенском
районе
В соответствии со статьями 45 и 46 Градостроительного кодекса Российской Федерации и в целях обеспечения градостроительного развития территории, ограниченной наб.Обводного кан., Лиговским пр., Курской ул., Воронежской ул., во Фрунзенском районе Правительство Санкт-Петербурга
ПОСТАНОВЛЯЕТ:
1. Утвердить проект планировки территории, ограниченной наб.Обводного кан., Лиговским пр., Курской ул., Воронежской ул., во Фрунзенском районе в составе:
1.1. Чертеж планировки территории, ограниченной наб.Обводного кан., Лиговским пр., Курской ул., Воронежской ул., во Фрунзенском районе (красные линии, объекты инженерной инфраструктуры) согласно приложению N 1.
1.2. Чертеж планировки территории, ограниченной наб.Обводного кан., Лиговским пр., Курской ул., Воронежской ул., во Фрунзенском районе (линии, обозначающие дороги, улицы, проезды; границы зон планируемого размещения объектов капитального строительства) согласно приложению N 2.
1.3. Положение о размещении объектов капитального строительства, характеристиках планируемого развития территории и характеристиках развития систем социального, транспортного обслуживания и инженерно-технического обеспечения, необходимых для развития территории, ограниченной наб.Обводного кан., Лиговским пр., Курской ул., Воронежской ул., во Фрунзенском районе согласно приложению N 3.
2. Утвердить проект межевания территории, ограниченной наб.Обводного кан., Лиговским пр., Курской ул., Воронежской ул., во Фрунзенском районе в составе:
2.1. Чертеж межевания территории, ограниченной наб.Обводного кан., Лиговским пр., Курской ул., Воронежской ул., во Фрунзенском районе (красные линии, границы зон с особыми условиями использования территории) согласно приложению N 4.
2.2. Чертеж межевания территории, ограниченной наб.Обводного кан., Лиговским пр., Курской ул., Воронежской ул., во Фрунзенском районе (границы застроенных земельных участков, границы формируемых земельных участков, планируемых для предоставления физическим и юридическим лицам) согласно приложению N 5.
3. Постановление вступает в силу на следующий день после его официального опубликования.
4. Контроль за выполнением постановления возложить на вице-губернатора Санкт-Петербурга Оганесяна М.М.
Губернатор Санкт-Петербурга |
Г.С.Полтавченко |
Приложение N 1
к постановлению
Правительства Санкт-Петербурга
от 17.02.2015 N 143
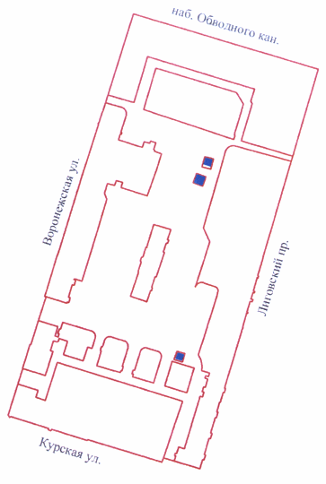
ЧЕРТЕЖ
планировки территории, ограниченной наб.Обводного кан., Лиговским пр.,
Курской ул., Воронежской ул., во Фрунзенском районе
(красные линии, объекты инженерной инфраструктуры)

| Условные обозначения |
| - красные линии |
| - объекты инженерной инфраструктуры |
Приложение N 2
к постановлению
Правительства Санкт-Петербурга
от 17.02.2015 N 143
ЧЕРТЕЖ
планировки территории, ограниченной наб.Обводного кан., Лиговским пр.,
Курской ул., Воронежской ул., во Фрунзенском районе
(линии, обозначающие дороги, улицы, проезды;
границы зон планируемого размещения
объектов капитального строительства)

| Условные обозначения |
| - линии, обозначающие дороги, улицы, проезды |
| - границы зон планируемого размещения объектов капитального строительства |
Приложение N 3
к постановлению
Правительства Санкт-Петербурга
от 17.02.2015 N 143
ПОЛОЖЕНИЕ
о размещении объектов капитального строительства,
характеристиках планируемого развития территории и характеристиках развития
систем социального, транспортного обслуживания и инженерно-технического
обеспечения, необходимых для развития территории, ограниченной
наб.Обводного кан., Лиговским пр., Курской ул., Воронежской ул.,
во Фрунзенском районе
1. Границами территории проекта планировки с проектом межевания территории, ограниченной наб.Обводного кан., Лиговским пр., Курской ул., Воронежской ул., во Фрунзенском районе (далее - территория) являются:
на севере - наб.Обводного кан.;
на юге - Курская ул.;
на западе - Воронежская ул.;
на востоке - Лиговский пр.
2. Характеристика планируемого развития территории.
N п/п | Параметры | Единица измерения | Количество |
1 | Площадь территории в границах элементов планировочной структуры, в том числе: | га | 4,60 |
1.1 | Площадь формируемых земельных участков | га | 0,37 |
1.2 | Площадь застроенных земельных участков | га | 2,49 |
1.3 | Площадь территорий общего пользования | га | 1,74 |
2 | Плотность застройки | кв.м общей площади/га | 17800 |
3 | Величина отступа от красной линии | м | 0 |
3. Параметры застройки.
N п/п | N земельного участка | Функциональное назначение объекта капитального строительства | Площадь земельного участка, га | Максимальная высота объектов капитального строительства, м | Максимальная общая площадь объекта капитального строительства, кв.м | |
1 | 2 | 3 | 4 | 5 | 6 | |
1. Застроенные земельные участки | ||||||
1.1 | 1 | Коммерческий объект, не связанный с проживанием населения, со встроенным многоэтажным гаражом, со встроенным распределительным пунктом с трансформаторной подстанцией, со встроенным вестибюлем метрополитена | 0,63 | - | - | |
1.2 | 3 | Многоквартирный дом | 0,07 | - | - | |
1.3 | 4 | Многоквартирный дом | 0,03 | - | - | |
1.4 | 5 | Многоквартирный дом | 0,04 | - | - | |
1.5 | 6 | Многоквартирный дом | 0,05 | - | - | |
1.6 | 7 | Государственный административно-управленческий объект | 0,18 | - | - | |
1.7 | 8 | Многоквартирный дом | 0,08 | - | - | |
1.8 | 9 | Многоквартирный дом | 0,03 | - | - | |
1.9 | 10 | Многоквартирный дом | 0,03 | - | - | |
1.10 | 11 | Многоквартирный дом | 0,15 | - | - | |
1.11 | 12 | Многоквартирный дом | 0,36 | - | - | |
1.12 | 13 | Многоквартирный дом | 0,07 | - | - | |
1.13 | 14 | Многоквартирный дом | 0,05 | - | - | |
1.14 | 15 | Многоквартирный дом | 0,04 | - | - | |
1.15 | 16 | Многоквартирный дом | 0,03 | - | - | |
1.16 | 17 | Многоквартирный дом | 0,09 | - | - | |
1.17 | 18 | Жилой дом | 0,23 | - | - | |
1.18 | 19 | Трансформаторная подстанция | 0,006 | - | - | |
1.19 | 20 | Трансформаторная подстанция | 0,004 | - | - | |
1.20 | 21 | Многоквартирный дом | 0,04 | - | - | |
1.21 | 22 | Многоквартирный дом | 0,03 | - | - | |
1.22 | 23 | Многоквартирный дом | 0,05 | - | - | |
1.23 | 24 | Многоквартирный дом | 0,03 | - | - | |
1.24 | 25 | Многоквартирный дом | 0,04 | - | - | |
1.25 | 26 | Многоквартирный дом | 0,12 | - | - | |
1.26 | 27 | Трансформаторная подстанция | 0,005 | - | - | |
2. Формируемые земельные участки, планируемые для предоставления физическим и юридическим лицам для строительства | ||||||
2.1 | 2 | Объект дошкольного образования | 0,37 | 14 | 2500 | |
4. Характеристика планируемого развития систем социального обслуживания территории.
На территории предусматривается размещение объекта дошкольного образования не менее чем на 90 мест на земельном участке 2.
5. Характеристика планируемого развития систем транспортного обслуживания территории.
На территории предусматривается организация открытых автостоянок не менее чем на 8 машиномест на земельном участке 12, не менее чем на 8 машиномест на земельном участке 7, не менее чем на 21 машиноместо на внутриквартальной территории общего пользования, не менее чем на 5 машиномест на территории улично-дорожной сети.
6. Характеристика планируемого развития системы инженерно-технического обеспечения территории
Водоснабжение - 22,8 куб.м/сутки предусматривается от системы централизованного водоснабжения.
Водоотведение - 11,6 куб.м/сутки предусматривается в систему централизованного водоотведения.
Теплоснабжение - 0,26 Гкал/час предусматривается от системы централизованного теплоснабжения.
Электроснабжение - 95 кВА предусматривается от системы централизованного электроснабжения.
Приложение N 4
к постановлению
Правительства Санкт-Петербурга
от 17.02.2015 N 143
ЧЕРТЕЖ
межевания территории, ограниченной наб.Обводного кан., Лиговским пр.,
Курской ул., Воронежской ул., во Фрунзенском районе
(красные линии, границы зон
с особыми условиями использования территории)

Условные обозначения | |
| - красные линии |
Границы зон с особыми условиями использования территории | |
| - охранная зона канализационных сетей |
| - охранная зона канализационных тоннельных коллекторов |
| - охранная зона водопроводных сетей |
| - водоохранная зона водного объекта |
| - охранная зона сетей связи и сооружений связи |
| - охранная зона газораспределительной сети |
| - охранная зона подстанций и других электротехнических сооружений |
| - охранная зона подземных кабельных линий электропередачи |
Примечание.
Вся территория находится в границах зоны регулирования застройки и хозяйственной деятельности (ЗРЗ 2-1)
Приложение N 5
к постановлению
Правительства Санкт-Петербурга
от 17.02.2015 N 143
ЧЕРТЕЖ
межевания территории, ограниченной наб.Обводного кан., Лиговским пр.,
Курской ул., Воронежской ул., во Фрунзенском районе
(границы застроенных земельных участков, границы формируемых
земельных участков, планируемых для предоставления
физическим и юридическим лицам для строительства)

| Условные обозначения |
| - границы застроенных земельных участков |
| - границы формируемых земельных участков, планируемых для предоставления физическим и юридическим лицам для строительства |
| - номер участка |
